Energy Modelling Study

MyPlaceIQ Air Energy Modelling

Executive Summary

This Report has been prepared for MyPlace to assess the comparative energy usage of typical domestic air conditioning installation and one with MyPlaceIQ Air technology. The energy usage of the two systems was modelled in energy modelling software, Integrated Environmental Solutions Virtual Environment (IESVE).

The New South Wales government’s Building Sustainability Index (BASIX) typically requires two zones provided to the household air conditioning. This report assesses the energy usage of this two-zone system compared to a 10-zone layout with MyPlaceIQ Air technology.

The below were the main findings of the report:

  • The MyPlaceIQ Air technology can provide up to 50% reduction in energy consumption compared to a two zone BASIX arrangement dependent on the scenario.
  • Over the course of a year the MyPlaceIQ Air technology can reduce air conditioning energy consumption by up to 40%.

From the comparative assessment of the energy consumption the MyPlaceIQ Air technology will reduce energy consumption

Introduction

MyPlaceIQ Air is a proprietary technology solution which increases the efficiency of a residential air conditioning installation. MyPlace have engaged CCC Engineering to complete an independent assessment of the energy savings provided by the MyPlaceIQ Airtechnology.

CCC Engineering have modelled the system operation in comparison to an agreed baselinein Integrated Environmental Solutions Virtual Environment (IESVE) to accurately model therelative energy consumption of the system. IESVE is a sub-hourly thermal simulation suitethat can be used to model new and existing buildings of varying sizes and complexity.

The New South Wales government’s Building Sustainability Index (BASIX) typically requirestwo zones provided to the household air conditioning. This report assesses the energyusage of this two-zone system compared to a 10-zone layout with MyPlaceIQ Air technology.

The primary technological improvements of the MyPlaceIQ Air technology modelled in this report are:

  • The impact of increasing the system zoning from 2 to 10 zones, which canindependently turn on and off
  • The impact off adding dedicated temperature sensors to each zone to control thesupply air dampers associated
  • The impact of alternating from a unit Return Air sensor to a dedicated zone temperature to reflect the MyPlaceIQ Air arrangement



The effectiveness of these technologies is then assessed in the five below scenarios: “Got home from work”. Rooms in use are Theatre, Kitchen, Family/Meals, Bed 4“Nighttime”. Rooms in use are Bed 1, Bed 3, Bed 4“Kids gone to bed”. Rooms in use are Theatre, Bed 3, Bed 4“Work from home”. Rooms in use are Study, Kitchen“Day time nap”. Rooms in use are Bed 2, Family/Meals, Kitchen

Energy Modelling Study

Modelling Inputs

The below sections outline the modelling arrangements and inputs used in the various IESVE modules.

Proposed Site

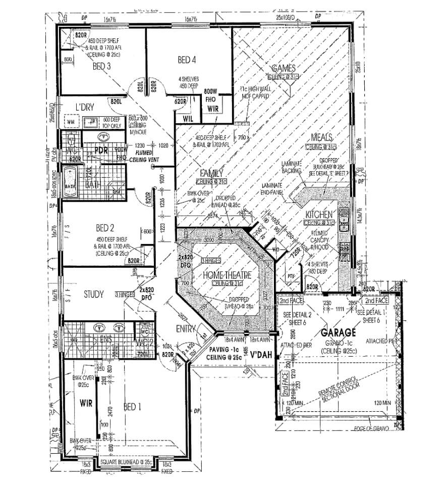
A fictional address was created in Penrith, New South Wales containing a single story, five- bedroom house. This site is located in the Penrith Council Local Government Area and has a mild temperate climate.

Climate Data

Local weather data which was generated from observations over recent climate data was used for the assessment. These files are representative of the current local climate for the site and imported as below.

Occupancy

Internal Gains

Construction

Comparison to Typical BASIX Arrangement

Note the below zones are modeled as unconditioned

  • Roof
  • Garage
  • Bed 1 Ensuite
  • Laundry
  • Bathroom
  • Powder Room
  • Bed 4 Walk In wardrobe
  • Corridor

The technology philosophy of the two arrangements was then modeled in the Apache HVAC

module of IESVE. Each system was sized at 14kW of total cooling with a Coefficient of Performance of 3.02.

This is in line with a standard Direct Expansion air conditioning system such as a Daikin or Mitsubishi Inverter air conditioning system.

BASIX Arrangement

MyPlaceIQ Air

Comparison of Typical Use Scenarios

Following the assessment of overall energy consumption, MyPlace requested CCC model specific scenarios to reflect real-world applications. The scenarios illustrate how the MyPlaceIQ Air system allows for zones to be closed-off, preventing cooling areas which are not occupied,

The rooms utilised in these scenarios are outlined below.

Scenario 1 - “Got home from work”

Rooms in use are Theatre, Kitchen, Family/Meals, Bed 4

Scenario 2 - “Nighttime”

Rooms in use are Bed 1, Bed 3, Bed 4

With the exception of Scenario 2 "Day Time Nap", we're pretty consistently seeing around 50% energy reduction.

Scenario 3 - “Kids gone to bed”

Rooms in use are Theatre, Bed 3, Bed 4

Scenario 4 - “Work from home”

Rooms in use are Study, Kitchen

Scenario 5 - “Day time nap”

Rooms in use are Bed 2, Family/Meals, Kitchen

Product added to compare.

We use cookies to enhance your experience, for analytics and to show you offers tailored to your interests on our site and third party sites. We may share your information with our advertising and analytic partners. Find out more about cookies by reading our updated Cookies Policy, which contains further information about the cookies and other technologies we use and information about how to disable them. By clicking "Accept", you agree to our use of cookies and similar technologies.